Opere di collegamento fognario del comune di Ceriale al depuratore consortile di Borghetto S. Spirito (SV)
e di ampliamento dell’impianto

 

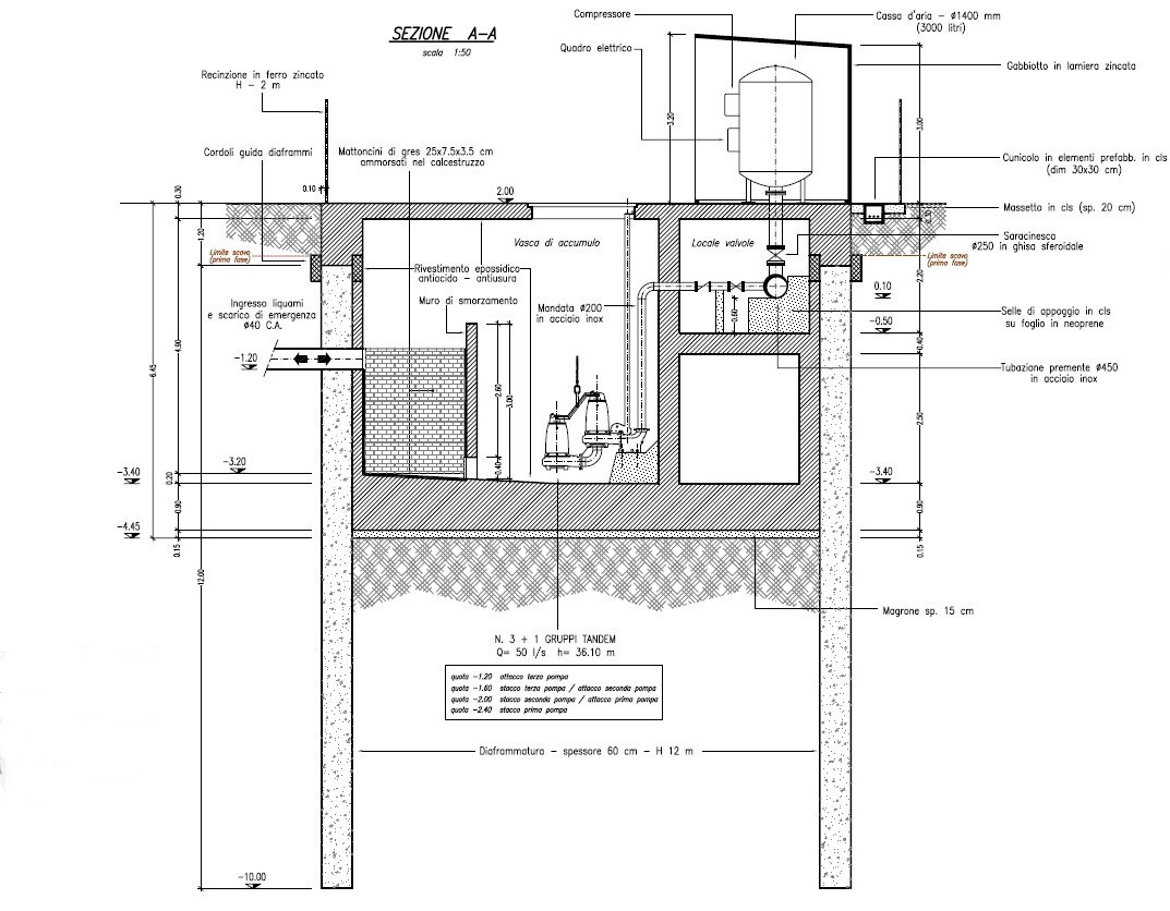
L’intervento riguarda la dismissione del preesistente impianto pretrattamenti in corrispondenza del terminale fognario del comune di Ceriale e la realizzazione delle opere di allacciamento di detto terminale fognario all’impianto di depurazione di Borghetto S. Spirito. Esso si inserisce nella più ampia realizzazione del sistema di raccolta, collettamento, depurazione e scarico dei reflui urbani del comprensorio corrispondente alla zona di costa ligure compresa tra Laigueglia e Borgo Verezzi (SV), iniziata negli anni ’90 e tuttora in corso, e costituito da 19 comuni, in parte costieri e in parte ubicati nell’entroterra.  

COMMITTENTE:
Servizi Ambientali S.p.A. (SV)

PRESTAZIONE SVOLTA:
Progetto Preliminare, Definitivo, Direzione Lavori, Coordinamento Sicurezza in fase di Progettazione e di Esecuzione  

PERIODO ESECUZIONE:
Fase progettuale 2002-2006
Fase esecutiva 2010-2012
 

STATO OPERE:
Collaudo e messa in funzione 2013

IMPORTO LAVORI:
9.691.881,45 euro

 

 

© Copyright 2021 STUDIO HYDRA s.r.l. - via Reggio Emilia 36, 20057 Assago (MI) – 02.23185801 - studiohydrasrl@studiohydra.it

P.IVA 05042060961 - Capitale sociale 50.000,00 € i.v.